Copropriété
Dans le cadre de la création ou la modification de copropriétés
Étude personnalisée
gratuite
L’esquisse d’étages
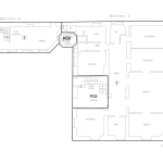
L’esquisse d’étages est rédigée par le Géomètre-Expert (seul habilité en Alsace Moselle) et sert à votre notaire à la rédaction du règlement de copropriété. Cette esquisse d’étages est enregistrée au cadastre, et votre notaire l’annexe au règlement de copropriété en vue de son inscription au livre foncier. Elle sert donc de base et il est primordial qu’elle soit correctement et rigoureusement rédigée car la gestion future de la copropriété en découlera en partie. Cette esquisse définit tant les parties privatives que communes et précisera la répartition des tantièmes de copropriété.
L’esquisse d’étage est nécessaire lors de la mise en copropriété
La mise en copropriété d’un bien immobilier concerne 2 cas de figure :
L’esquisse d’étages modificative
Elle consiste en la mise à jour des plans, lots, millièmes/tantièmes suite à une modification de lot ou privatisation de partie commune non régularisée jusque là. Celle-ci est suivie d’un règlement de copropriété modificatif établi par un notaire.
L’esquisse en volumes
La division en volumes est nécessaire dans des cas particuliers, elle est complexe. La division en volumes est une technique qui consiste à diviser la propriété d’un immeuble en fractions privatives distinctes, sur le plan horizontal et vertical, à des niveaux différents qui peuvent se situer au-dessus ou en dessous du sol naturel, sans qu’il n’y ait de parties communes.
Elle est nécessaire lorsque les batiments sont imbriqués par exemple, lorsqu’un bout de batiment dépasse sur/sous la parcelle voisine (ex : une cave, une toiture/terrasse). Elle peut être établie également en cas de changement de nature de propriétaire (ex : une partie domaine public et une partie en domaine privé, ou pour éviter une mise en copropriété notamment pour un bailleur social qui souhaite céder un local commercial au rdc bien souvent). Cette division permet l’établissement d’une convention purement contractuelle entre les parties, définissant ainsi le droit de propriété sur un volume selon des côtes planimétriques et altimétriques (NGF-IGN 69).
Cette esquisse en volumes est rédigée et enregistrée au cadastre et inclut des plans de niveau, des plans de coupe, un état descriptif de division en volumes. Elle sera nécessaire au notaire à la rédaction de son acte de cession.
Quelques-unes de nos réalisations









